住友商事ビル事業部が運営するオフィスビル情報
トップページ
>>
オフィスビル情報
>> 神保町ビル
所在地:
東京都千代田区神田錦町3丁目24
延床面積:
10,756.39m
2
賃貸面積:
6,685.38m
2
構 造:
鉄骨鉄筋コンクリート造
一部鉄筋コンクリート造
規 模:
地上8階・地下1階建
竣 工:
1977年竣工〜2002年全面 リニューアル
東京メトロ半蔵門線・都営三田線・
新宿線「神保町」徒歩1分
都営メトロ東西線「竹橋」徒歩5分
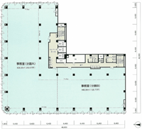
基準階面積:1,287.10m
2
(約389.35坪)
天井高:2,510mm
床配線:OA床/70mm
床荷重:300kg/m
2
住商ビルマネージメント 営業第一部
TEL:03-5144-4811
|
TOP
|
オフィスビル情報
|
トピックス
|
資産活用
|
ビル事業について
|
住友商事グループ
|
サイトマップ
|
サイトついて
|